Made for Entertaining

Lot 53 Highsted Residential, Christchurch North

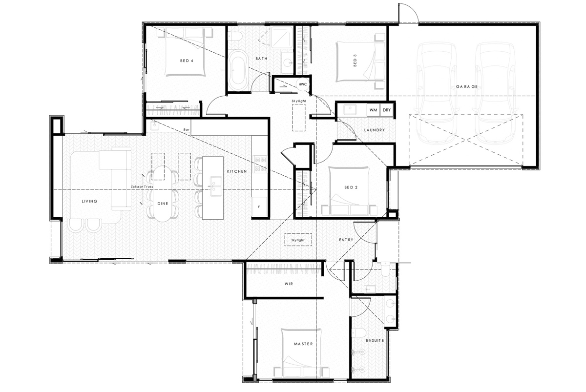
Floor Area
198 m²
bedroom
4
Bathroom
2
Garage
2

Home and Land Package at Highsted Residential

Welcome to effortless entertaining at Highsted Residential, where this architecturally designed home brings people together through thoughtful layout and refined design. Created for modern living, this home and land package is ideal for families and professionals seeking space, flexibility, and quality in a well-planned residential community.

At the heart of the home, the open plan kitchen, dining, and living areas connect seamlessly, making everyday living and entertaining feel natural and relaxed. A feature bar anchors the living space and becomes a natural gathering point for celebrations, casual evenings, and hosting friends and family. Skylights positioned throughout the home capture changing natural light, creating interiors that feel bright, open, and welcoming throughout the day.

Four generous bedrooms offer flexibility for growing families, guest accommodation, or a dedicated home office. The master bedroom provides a peaceful retreat, complete with a private ensuite and walk-in robe, allowing space to unwind at the end of the day.

Located within the sought-after Highsted Residential development, this home is designed to balance architectural style with practical functionality. Every element has been carefully considered to support comfortable, social living while delivering the quality and durability expected from a David Reid Homes build.

To find out more about this Highsted Residential home and land package or to arrange a site visit, contact Carl for further details.

Download Brochure

Talk to me about Home & Land

For further information give me a call.

Get Directions

Learn about our Custom Design & Build process

Read more